Price £750,000 New Instruction
  • DETACHED
  • EXTENDED
  • FOUR BEDROOMS
  • RECENTLY REFURBISHED
  • DOUBLE GARAGE
  • GARDENS
  • OPEN PLAN LIVING
  • EN SUITE
  • LORDSHIP SCHOOL CATCHMENT
  • DRIVEWAY

EXTENDED......This beautifully presented detached property benefits from a double storey extension and has been completely refurbished within the last six years creating a spacious living area, perfect for family life. The property also comes with a double garage and a driveway for up to three cars.

Letchworth Garden City is home to the UK's First Roundabout and is the original Garden City' offering residents the best of town and country living. The Town Centre is easily accessible boasting a wide variety of civic and recreational amenities, along with a good range of shopping facilities. There is excellent local schooling, and for commuters there is a mainline train station which connects to London Kings Cross, and excellent links to major roads particularly the A1M.

All information provided is given by the vendor.

Entrance Hall
Composite door to front aspect. Double glazed window to rear aspect. Radiator. Amtico flooring. Spotlights. Cupboard.

Cloakroom
Double glazed window to front aspect. Wash hand basin. WC. Radiator. Refurbished two years ago.



Lounge - 21'9" (6.63m) x 11'2" (3.4m)
Double glazed window to front aspect x 3. Radiator x 2. Spotlights, Amtico flooring. Opens into kitchen/dining area

Kitchen/Dining/Living Area - 23'9" (7.24m) Max x 21'9" (6.63m) Max
Double glazed window to rear and side aspect. Sliding doors to rear aspect x 2. Fitted kitchen comprising of a range of wall and base units. Integrated oven/microwave, induction hob, dishwasher and bin store. Storage cupboard. Amtico flooring.

Utility Room - 8'6" (2.59m) x 6'3" (1.91m)
Door to rear garden. Plumbing for a washing machine. Amtico flooring. Radiator. Storage cupboard.

Landing
Airing cupboard housing a five year old combi boiler. Access to a part boarded loft with lighting.

Bedroom One - 12'4" (3.76m) x 9'8" (2.95m)
Double glazed window to rear aspect. Built in wardrobe. Radiator.

En Suite
Double glazed window to side aspect. Shower cubicle. Wash hand basin. WC. Radiator.

Bedroom Two - 13'6" (4.11m) x 12'11" (3.94m)
Double glazed window to front aspect. Radiator.

Bedroom Three - 11'6" (3.51m) x 10'0" (3.05m)
Double glazed window to rear aspect. Radiator.

Bedroom Four - 9'4" (2.84m) x 7'7" (2.31m)
Double glazed window to front aspect. Radiator.

Bathroom
Double glazed window to side aspect. Bath. Shower over bath. Wash hand basin. WC. Radiator. Tiled floor.

Front Garden
Lawn with flower beds and Acer tree.

Rear Garden
Lawn with patio area, borders, decking area, access down both sides and door to garage.

Garage
Double garage with power, lighting and tap.

Driveway
Driveway with parking for up to three cars.



Council Tax
North Hertfordshire council, Band F

Ground Rent
£10.00 Yearly

Lease Length
944 Years

Notice
Please note we have not tested any apparatus, fixtures, fittings, or services. Interested parties must undertake their own investigation into the working order of these items. All measurements are approximate and photographs provided for guidance only.

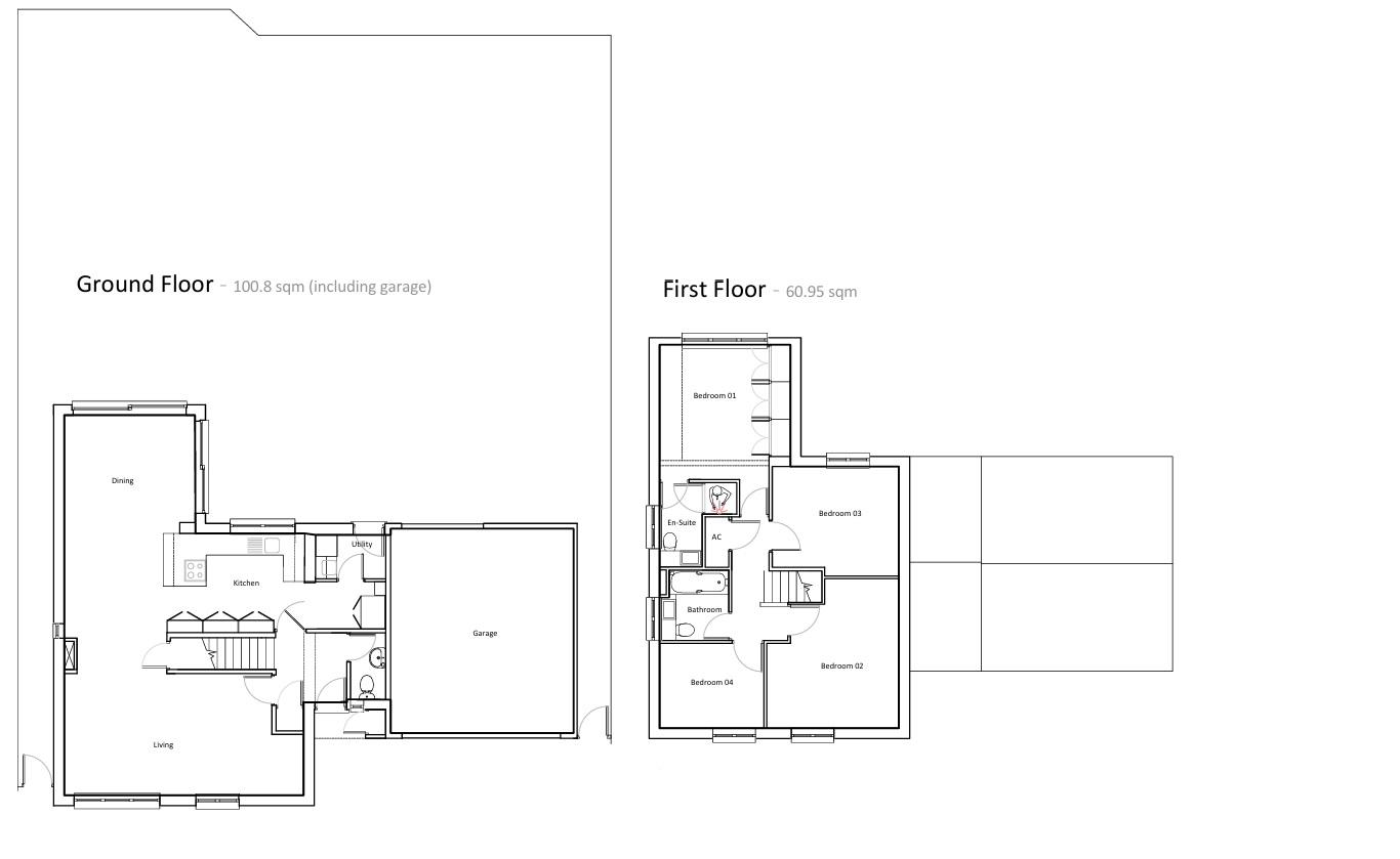
Floor Plan
EER Chart

The Energy-Efficiency Rating is a measure of a home's overall efficiency. The higher the rating, the more energy-efficient the home is, and the lower the fuel bills are likely to be.

Utility Supply Type
Electric Unknown
Gas Unknown
Water Unknown
Sewerage Unknown
Broadband Unknown
Telephone Unknown

Other Items Description
Heating Gas Central Heating
Garden/Outside Space No
Parking Yes
Garage Yes

Broadband Coverage Highest Available Download Speed Highest Available Upload Speed
Standard 4 Mbps 0.6 Mbps
Superfast 38 Mbps 6 Mbps
Ultrafast 1000 Mbps 100 Mbps

Mobile Coverage Indoor Voice Indoor Data Outdoor Voice Outdoor Data
EE Likely Likely Enhanced Enhanced
Three No Signal No Signal Enhanced Enhanced
O2 Enhanced Enhanced Enhanced Enhanced
Vodafone Enhanced Enhanced Enhanced Enhanced

Broadband and Mobile coverage information supplied by Ofcom.


marker icon